Villars-le-Terroir
  • Appartement Neuf et Spacieux à 5 minutes d'Echallens - 2.5 pièces

  • Réf: V-2405-2

Ce nouveau projet au cœur de Villars-le-Terroir allie le charme des vieilles pierres à la modernité. 

Sur cette parcelle, la rénovation d'une ancienne ferme et d'une maison villageoise prévoit d'accueillir 9 nouveaux appartements. Espaces verts, luminosité et matériaux modernes offriront aux futurs propriétaires un environnement centré sur la qualité de vie. 

Un chauffage en géothermie et des panneaux photovoltaïques contribueront à un système d'énergie efficace et conforme aux nouvelles normes écologiques. 

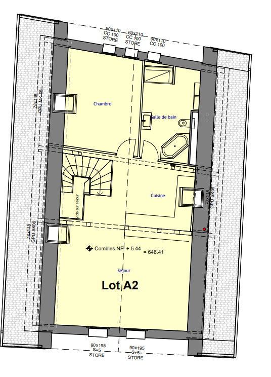
En combles de la maison villageoise, ce spacieux 2.5 pièces (80 m2) se composera de: 
- Palier d'entrée privatif et escalier d'accès 
- Séjour, salle à manger 
- Chambre à coucher 
- Salle d'eau avec douche, baignoire, lavabo, wc et espace raccordé pour colonne lave-linge et sèche-linge. 

Chaque propriétaire aura la possibilité de choisir des équipements personnalisés selon ses préférences. 
Une grande cave ainsi que deux places de parking complètent le lot. 
Une variété de commerces sont facilement accessibles à 5 minutes en voiture.

Détail du prix de vente :

CHF 674 000.00 : appartement
CHF   50 000.00 : deux places de parc

CHF 724 000.00 : Prix de vente total

Laissez libre cours à vos envies et n'hésitez pas à nous contacter.

Loyer : CHF 724 000.00.-
 
Loading…
Loading the web debug toolbar…
Attempt #